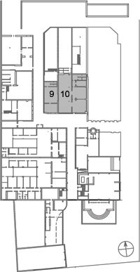
Fläche 9 und 10 - Büro/Handel
|
| Fläche 9: | 91,01 m² | Büro- oder Handelsfläche im Erdgeschoß mit charakteristischer Dachkonstruktion und historischen Stahltraversen |
| Fläche 10: | 234,00 m² | Büro- oder Handelsfläche im Erdgeschoß mit charakteristischer Dachkonstruktion und historischen Stahltraversen |
Innenansichten zu Fläche 10:
(Mauszeiger über Bild für Zoom)
|
Innenansicht |
