Büro
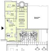
Übersicht der zu mietenden Büroeinheiten im Erdgeschoß:
(Linksklick auf Abbildung)
|
Fläche 1: 440,61 m² Fläche 2: 363,01 m² |
|
Fläche 3: 198,68 m² Fläche 4: 207,47 m² |
|
|
|
Fläche 9: 91,01 m² |
|
Fläche 11: 151,52 m² |
|
|
|
Fläche 13: 223,18 m² Fläche 14: 268,09 m² |
|
|||
| zurück |









